فيلا ليلى
تحت الإنشاء
المواصفات
- مطبخ رئيسي مجهّز بالكامل (Nobilia)
- عدة مطابخ تحضيرية (Nobilia)
- عدة صالات
- مصعد
- غرفة غسيل
- خزائن ملابس، أرفف ومساحات تخزين
- سكن للعمالة المنزلية (نساء)
- سكن للعمالة المنزلية (رجال)
- مسبح مع حمّام
- مواقف لأربع سيارات
- بلكونات
- تراس السطح
- ديوانية
- تجهيزات صحية للحمّامات (Villeroy & Boch, Hansgrohe)
- قربها من مدينة الكويت
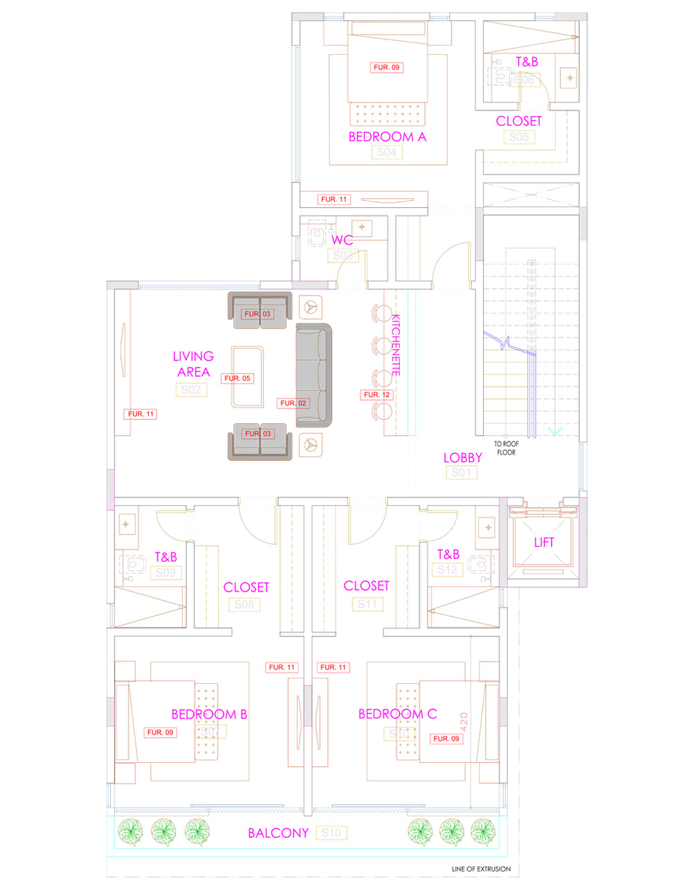
فيلا ليلى مشروع عصري من تصميم "Standard by Kayan"، يهدف إلى الاستفادة القصوى من المساحة المتاحة وتلبية احتياجات عائلة كبيرة. تقع في الدسمة، وهي منطقة قريبة من مدينة الكويت، وتوفر فيلا ليلى خمس غرف نوم ماستر ومواقف ضمن حدود القسيمة تتسع لأربع سيارات.
يضم الطابقان الأول والثاني غرف النوم، ولكل طابق صالة خاصة، وحمّامات للضيوف، ومطابخ تحضيرية. أما الطابق الأرضي فيحتوي على مناطق معيشة وطعام واسعة تطل على المسبح الخاص. وتخدم هذه المناطق المطبخ الرئيسي الذي يتضمن أيضًا مخزن مواد غذائية للتخزين الإضافي.
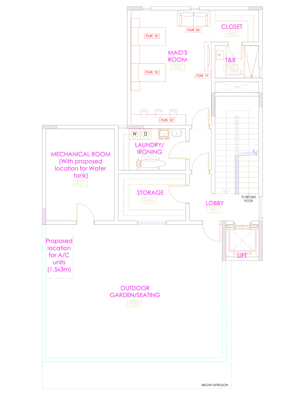
تقع الديوانية في السرداب ولها مدخل مستقل، ومطبخ خاص. كما يضم السرداب غرفتين للسائقين لكل منهما مطبخ تحضيري. ويوفر السطح مساحة خارجية للاستمتاع بالإطلالات، بالإضافة إلى سكن العمالة المنزلية (نساء) وغرفة غسيل.
تخدم جميع الطوابق مصعدًا واسعًا. كما يحيط بالطابق الأرضي ممر خدمي مناسب لمستخدمي الكراسي المتحركة يتيح الوصول إلى المواقف، والمدخل الرئيسي، وبهو المصعد، والمطبخ الرئيسي، ومنطقة المسبح.



